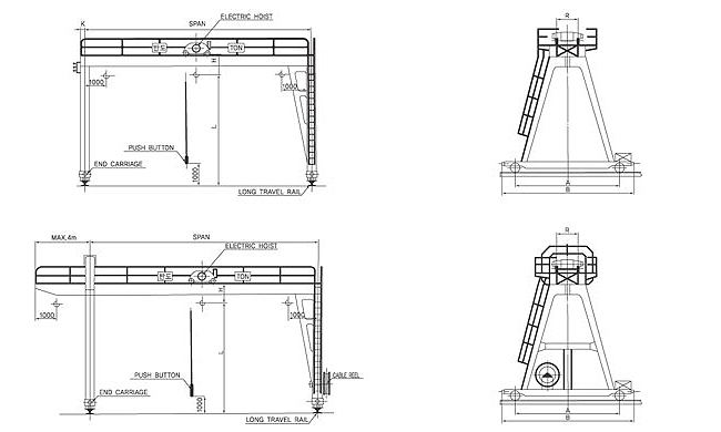
Double girder Gantry hoist crane

Cranes Applications | Kyungdong Industrial Co., Ltd.

Double girder Gantry hoist crane
Double girder Gantry hoist crane
Double girder Gantry hoist crane

Model

Capacity
(ton)

Max.
Span(m)

Lift
L (m)

Speed/Motor
(m/Min)

Approx. Dimensions
(mm)

Runway
Rail
(kg/m)

Runway
Rail
(kg/m)

Hoisting Traversing Travelling H R A B
DHG
-03
3 15 12 4.5/2.8
or
9/5.5

16/0.5
or
24/0.75

20/1*2
or
30/1.5*2
420 950 4000
~
5000
4500
~
5500
250 22
30
17.5
20
DHG
-05
5 10 4.2/4.2
or
5.6/5.5
510 1150
12.5
15
17.5 3500
~
4050
4600
~
5600
315
20
DHG
-10
10 10 3/6
or
4.5/9
10/0.5
or
15/0.75
750 1150
12.5
15
17.5 4000~
5000

4850~
5850

400 30
37 
20 20/1.5*2
or
30/2.2*2
4000
~
6000
4950
~
6950
DHG
-15
15 10 3/8.5
or
4.5/13
10/1*2
or
15/15*2
995 1200 500
630
12.5
15
17.5
20
DHG
-20
20 10 2.8/11.5
or
4.2/17
10/1*2
or
15/15*2
20/2.2*2
or
30/3.7*2
1175 1300 30
37
12.5
15 4000
~
6000
5100
~
7100
17.5 630
710
800
20
DHG
-30
30 10 1.8/11.5
or
2.8/17
1480 1800
12.5
15
17.5 4000
~
6000
5200
~
7200
20
DHG
-50
50 9 3.2/33 10/1*2
or
15/15*2
20/2.2*4
or
30/3.7~
5.5*4
1680 2300 6000
~
7000
9000
~
10000
13 500*8
630*8
710*8
50
18
28
30
DHG
-70
70 9 2.4/33 10/1.5*2
or
15/2.2*2
1780 2800 73
14
20
25
30
Page for the list